Make Space Work Better
Helping Councils Deliver More Social Homes Faster, Smarter, Affordably
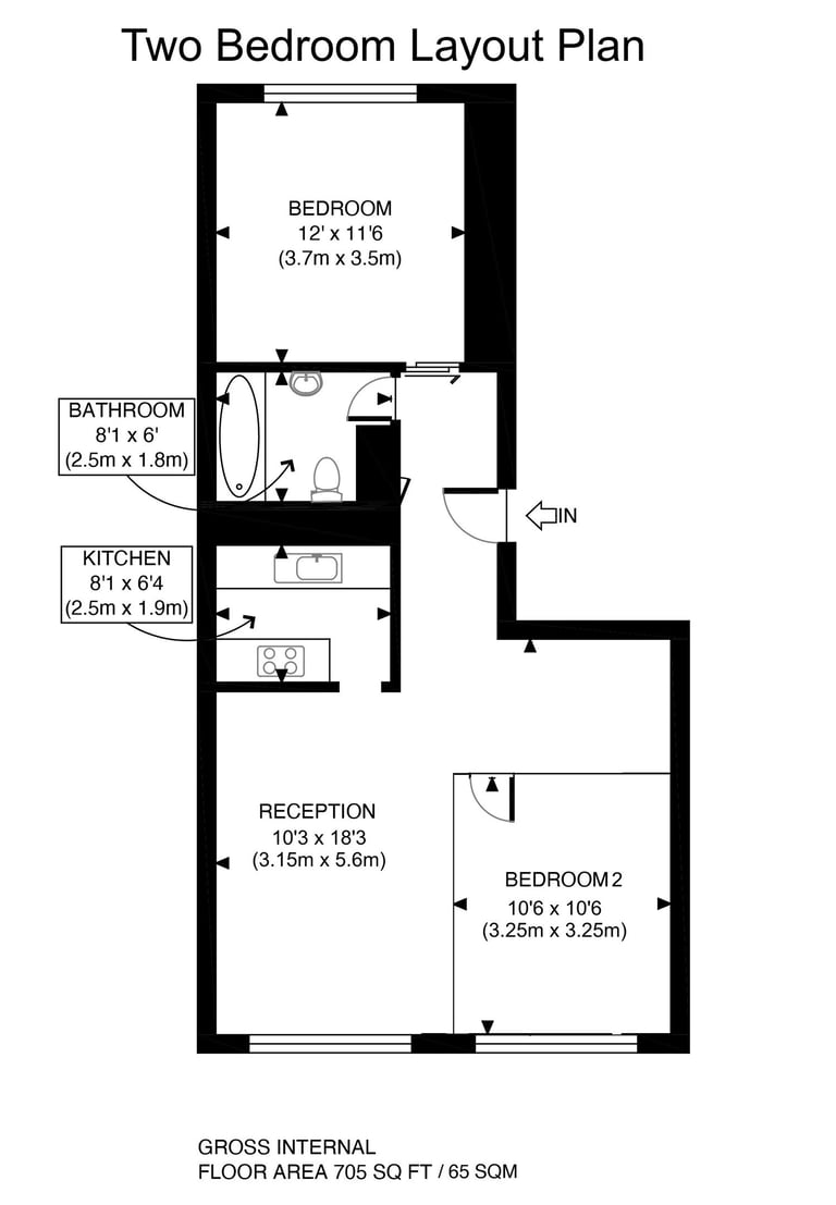
Bedrooms
We specialise in reconfiguring properties to create additional bedrooms
Our approach tackles overcrowding, quicker access to housing , and helps relieve the social housing backlog
Modern designs that comply with space standards, planning permission and building regulations.
Living
Planning
Creating More Homes for Families
We're tackling the UK housing crisis in a smarter way.
Instead of building new properties (which can take years), we find homes already on the market with big internal space and reconfigure the layout to add an extra bedroom.
The Reality: London Housing Need Today
Over 336,000 households are on the social housing waiting list across London.
Boroughs like Newham and Lambeth each have over 38,000 families waiting.
More than 183,000 Londoners are currently living in temporary accommodation.
Councils are under enormous pressure and we want to be part of a practical, speedy solution.






Why partner with us
Once upgraded, we offer these homes directly to councils for social, temporary, or emergency housing
Faster Solutions to a Big Problem
By reconfiguring layouts rather than constructing from scratch, we can deliver move-in-ready homes much faster to support more families, sooner.
Saves Councils Money
No land buying.
No long/ delayed construction timelines.
No big development risks.
Just smart conversions that transform under-used properties into the right kind of homes councils urgently need.
A real solution
The bottle neck for local authorities isn't just the number of new homes but the right property types, this way we can we can help families move up quicker
Better use of market stock
Improves temporary accommodation outcomes
Supports vulnerable families faster
Re-home families quicker and reduces the stress and pressure on the wait list




How Our Partnership with Councils Works
We handle everything from start to finish- from acquisition, through design, conversion, certification and ready to occupy to Councils








We Find the Right Properties
We look for homes with good internal space that can fit an extra bedroom with the right layout changes. As well as a review your existing stock for conversion potential
Work with architects, surveyors and builders to re-configure floor plans and add extra bedroom(s).
Ensure compliance with all building regulations, space standards, ventilation and safety requirements.
We Offer Back to Councils
Once refurbished and certified, we offer the properties — either for purchase by the council, or for lease/rent under contract — to meet social, temporary or emergency housing needs.
Provide full documentation and compliance certification, ready for immediate occupancy.
Councils can choose to purchase outright, or contract a long-term lease.
Option to prioritise conversions in boroughs with highest demand / waiting lists or temporary accommodation pressures.
You Re-house families in need
We Convert and Reconfigure


Why Councils Are Choosing This Model
This approach boosts your housing supply right now, not years from now
Fully Compliant & Designed for Real Families
Every home we deliver meet
Space standards
Planning requirements
Building regulations
Ventilation and natural light standards
We always keep a proper living/dining area, so families live comfortably not cramped.


Scales Up Easily
Because we work with homes already available on the open market, we can scale the programme borough by borough, based on where the need is greatest.


Let’s Work Together
If your borough needs affordable, high-quality homes now whether for social, temporary or emergency housing we’d love to talk.










